Search any keyword to find the content you’re looking for

ST 12

  • ST Series
  • ST Series
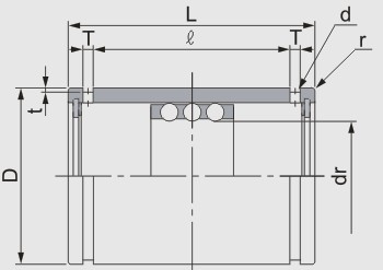
Model :ST 12
Maximum stroke(mm) :32
Number of rows :3
dr
mm :12
Tolerance :1.69
Major dimensions and tolerance
D mm :23
Tolerance(μm) :0/-13
L mm :32
Tolerance(μm) :0/-0.2
l mm :24.5
T mm :1.5
t (mm) :0.5
d(mm) :1.2
r :0.5
Basic load rating(kN)
Dynamic :1070
Static :813
Weight(Kg) :42